Departamentos
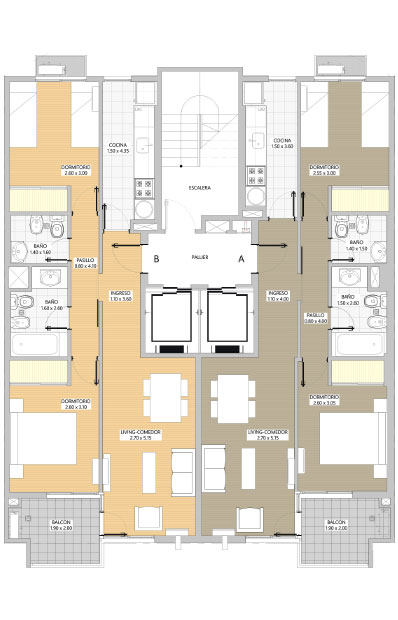
En los pisos 3 al 13 se encuentran dos semipisos de 2 dormitorios, cocina separada, baño principal y toilette, con balcones al frente y contrafrente.
Cocinas equipada con alacenas y muebles bajo-mesada.
Cocina Orbis o similar.
Termotanque electrico Rheem o Similar.
Mesadas de granito y bachas de acero inoxidable.
Baños completos.
Pisos en porcellanatos.
Amplios balcones.
Carpintería de aluminio.
Construcción y detalles de calidad.
La obra está compuesta por departamentos de 1 y 2 dormitorios, 1 dormitorio Plus (con espacio extra), 1 duplex de 2 dormitorios en pisos 14 y 15, y cómodas cocheras.
Quiero saber más >
La obra se encuentra a pocos metros del Parque Independencia, el espacio verde más importante de la ciudad, y de la Avenida Pellegrini y su amplia oferta recreativa.
Quiero saber más >
En el piso 15 encontramos un cómodo solarium con piscina, un quincho semicubierto con asador y excelentes vistas en altura hacia el frente y contrafrente.
Quiero saber más >